
mono/Bilocale ristrutturati in zona borgo palazzo bergamo
prezzi da euro 89.000

Bilocale
Inserito in palazzina signorile proponiamo esclusivo Bilocale totalmente ristrutturato.
La soluzione è composta da ingresso nella zona living con cucina a vista, disimpegno, bagno finestrato con box doccia, camera matrimoniale con un’ampia zona armadiatura-cabina armadio ed un ampio balcone.
Caratterizzato da una luminosità straordinaria grazie alle ampie finestre presenti in tutte le stanze e l’attenzione ai minimi dettagli, costituiscono un ambiente moderno e accogliente offrendo praticità e funzionalità in ogni angolo; molto curati sia dal punto di vista architettonico sia da quello impiantistico garantendo un comfort ottimale in ogni stagione! Una soluzione ideale per chi cerca uno spazio nel cuore di Bergamo a portata di tutti servizi ed immersi nel verde e nella tranquillità. Gli interni sono dotati di impianti innovativi e sostenibili.
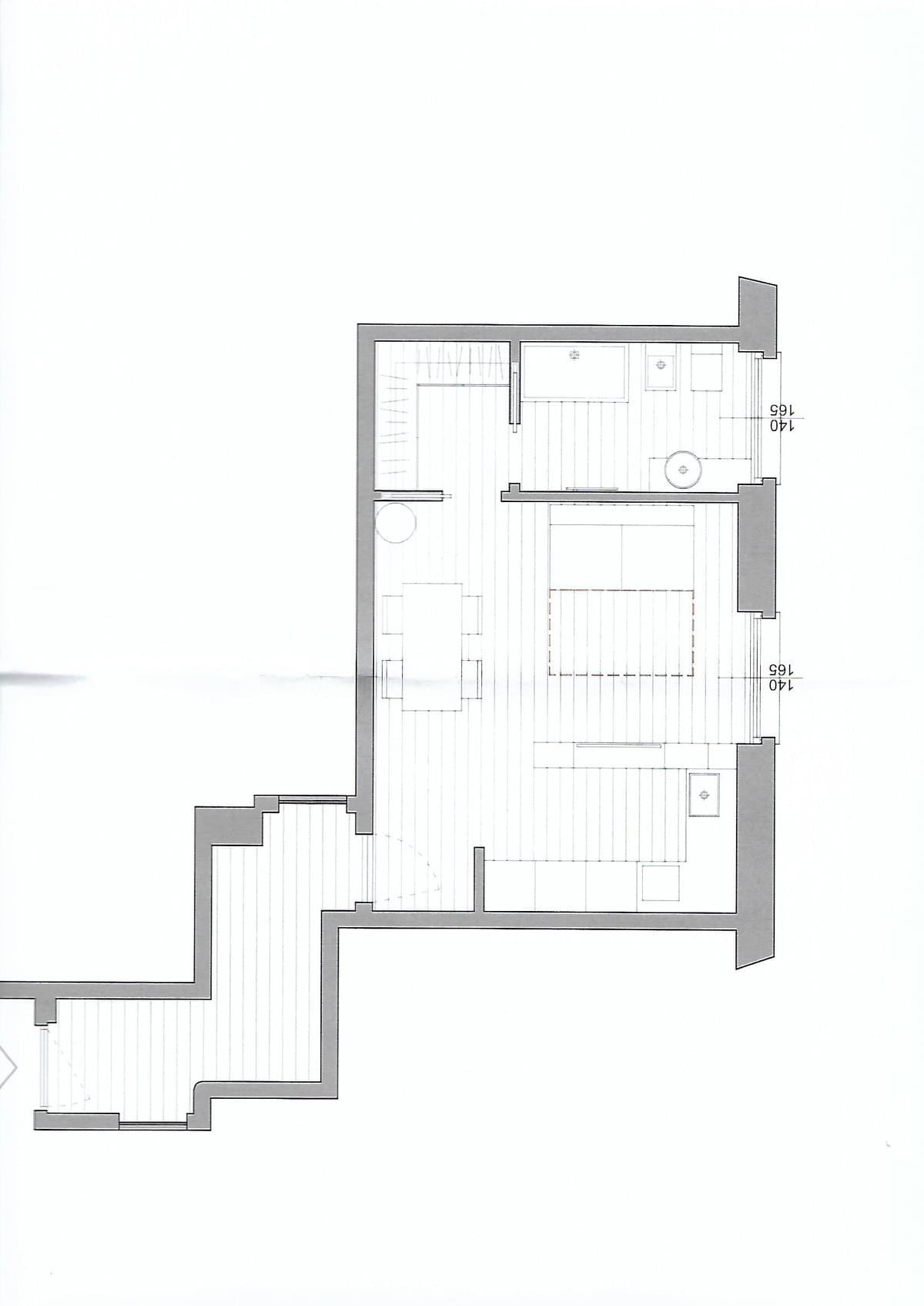
Monolocale
proponiamo ampio monolocale di 45 mq posto al secondo piano servito da ascensore all'interno di una palazzina in ottimo stato.
L'immobile è così composto: ingresso, soggiorno con zona pranzo, bagno padronale e lavanderia.
La soluzione immobiliare è in fase di ristrutturazione con la possibilità da parte dell'acquirente di scelta delle diverse finiture.
L'appartamento verrà consegnato completamente ristrutturato e pronto da abitare.
I lavori di ristrutturazione prevedono in sintesi la dotazione di:
• porta blindata
• tapparelle motorizzate
• infissi pvc di nuova generazione
• predisposizione alla climatizzazione
• pavimentazione in gres e/o parquet
• sanitari sospesi.video presentazione
Tel. fisso: +39 035 0383585
Chiara Tavasci: 3351408670 Enzo Gullotti: 3351408980
Geom. Christian meda: 3498305024
tav.chia77@hotmail.it
enzogullotti1@gmail.com
studio terno di gullotti enzo
Sede legale: dalmine (BG), 24044, Via Cesare Battisti 3 - C.C.I.A.A. di Bergamo, R.E.A. n. 348432
Iscritta all'Ufficio di Bergamo del Registro delle Imprese con partita iva n. 03089250165 e codice fiscale GLLNZE70S19M102I
P.E.C. STUDIOTERNO@PEC-LEGAL.IT
FEELING HOME OFFICIAL WEBSITE © 2023
Design by Elementary GroupTM



